Prodej bytu 2+kk v Měšicích u Prahy
Měšice - 5. května

5 590 000 Kč

Popis

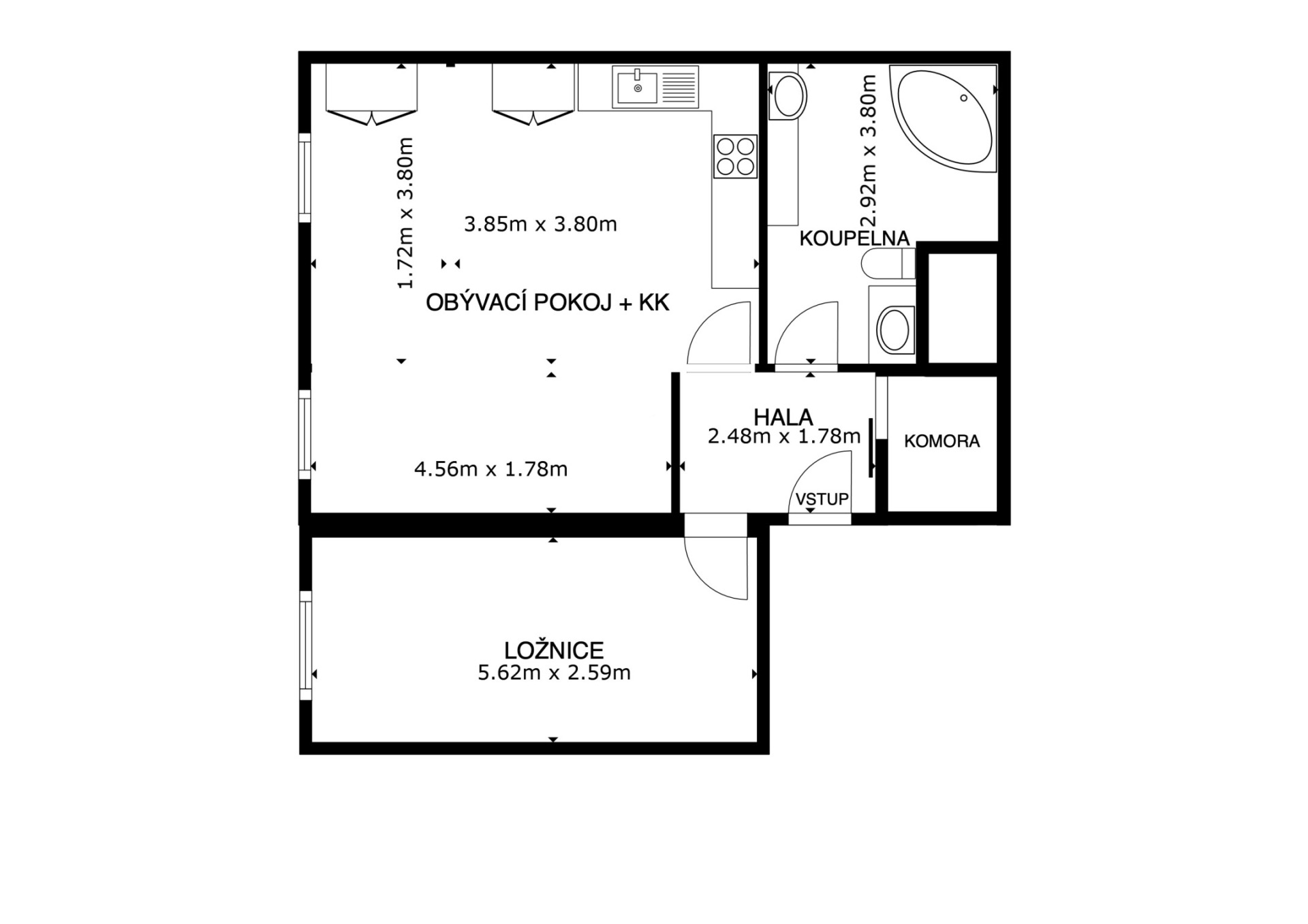
Nabízíme k prodeji dobře řešený byt o dispozici 2+kk a celkové ploše 61 m², který se nachází v 4. patře (5.NP) panelového domu v cihlové nástavbě z roku 2001.

Byt je velmi prostorný – hlavní obytná část s kuchyňským koutem nabízí dostatek místa pro pohodlné bydlení, nechybí samostatná šatna ani prostorná koupelna. Velkým bonusem je zabudovaná klimatizace, která zpříjemní horké letní dny.

K bytu náleží také sklepní kóje. Parkování je možné volně před domem. Obyvatelé domu mohou využívat společnou zahradu, což je ideální pro relaxaci či posezení s přáteli.

Dům se nachází v klidné lokalitě s dobrou dostupností do centra a kompletní občanskou vybaveností v blízkém okolí – obchody, MHD, školy i zeleň na dosah. Byt je ideální volbou pro jednotlivce, pár či jako investice k pronájmu.

Měšice u Prahy nabízí mnoho aktivit pro děti i dospělé. Je možné využít volně přístupné víceúčelové hřiště, které je vhodné pro nohejbal nebo třeba basketbal. Nedaleko od sebe se nachází areál fotbalového hřiště, který je rozšířen o beachvolejbal, skatepark i kynologické cvičiště. Kousek najdeme Centrum volného času, které nabízí různá cvičení, plavání a zábavu pro děti.
Milovníci přírody ocení Zámecké zahrady Měšického zámku, kde je krom vycházky možné i posedět nebo vyzkoušet hmatovou stezku. V Měšicích se nachází také několik rybníků.

5 minut chůze od domu se nachází autobusová zastávka odkud za 25 minut dojedete na metro Letňany. Dále je možné za 5 minut chůze dojít na vlak, který za 30 minut dojede do stanice Praha - Masarykovo nádraží.

Byt je v osobním vlastnictví a je možné ho financovat hypotečním úvěrem, který Vám ráda zprostředkuji.

Těším se na Vás při prohlídce.
Číslo nabídky
N511
Adresa
Měšice, 5. května
Dispozice bytu
2+kk
Druh stavby
Smíšená
Celková plocha
61 m2
Užitná plocha
61 m2
Stav objektu
Dobrý
Typ domu
Patrový
Číslo podlaží
5
Počet podlaží
5
Počet podlaží pod zemí
1
Vlastnictví
Osobní
K dispozici od
2025-12-01
Umístění objektu
Klidná část obce
PENB: Náročnost budovy
D - Méně úsporná
PENB: Ukazatel náročnosti budovy
147 kWh/m2
PENB: Norma
vyhláška 264/2020 Sb.
Tereza Lišková
Bc. Tereza Lišková
Domluvit prohlídku
zobrazit velkou mapu